Причалы и грузоподъёмные сооружения
Причалы и грузоподъемные сооружения
Общая площадь территории – 80 325 кв.м.
Глубоководная причальная линия, включая пирсы, имеет протяженность 1,6 км.
Глубина у кордона причалов и глубоководных пирсов составляет от 10 до 12 м, что позволяет принимать в ремонт суда водоизмещением до 8 500 тонн.
В распоряжении предприятия находятся следующие производственные мощности:Доки
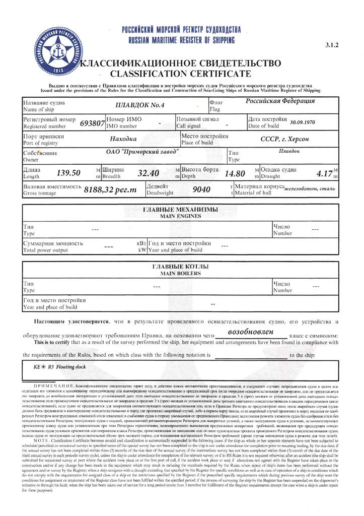
Характеристика плавучих доков:
Док,№ Класс РМРС Проект Материал корпуса Грузоподъемность, т Длина, м Ширина, м Высота борта,м Осадка,м Валовая вместимость, рег.т Кол-во и грузоподъёмность кранов, т плавдок №2 K*R3 Floatimg dock 122 А бетон (понтон и башни) 6000 131,8 22 14,6 4,16 8 785,6 2x5 т плавдок №4 K*R3 Floatimg dock 1760 бетон (понтон), сталь (башни)
8500 139,5 24 14,8 4,17 8 188,3 2x5 т Характеристика плавучих доков:
Док,№ Характ-ка судов при доковании Электропитание судов с ПД Вспомогательные дизель-генераторы Стояночные дизель-генераторы Подключение пожарной системы судна к доку Технологический возхдух плавдок №2 макс.доковый вес судна - 6000 т, макс.длина - 160 м, макс.осадка-5 м
напряжение - 380 В, частота - 50 Гц 4Д30/50, мощность 270 кВт, кол-во - 2 7Д6, мощность - 100 кВт морская среда, давление 8 кг/см2
производ. - 10 м3/мин, давление - 6,5 кг/см2 плавдок №4 макс.доковый вес судна - 8500 т, макс.длина - 170 м, макс.осадка - 5,4 м напряжение - 380 В, частота - 50 Гц 8Чн 25/30, мощность 300 кВт, кол-во - 2
Д6С, мощность - 100 кВт морская среда, давление 8 кг/см2 производ. - 10 м3/мин, давление - 6,5 кг/см2 Портальные
и мостовые краны6 портальных кранов грузоподъемностью от 5 до 30 т, а также мостовые краны (11 ед.), краны Укосина (5 ед.), кран-балки (5 ед.):
Тип крана Грузоподъемность, т Местонахождение КОНЕ 30/5 Пирс №1 КОНЕ 30/5 Пирс №2 КИРОВЕЦ 15 Пирс №3 ЧЕРЕТТИ 30 Причал №28 ЧЕРЕТТИ 30 Причал №28 ГАНЦ 5 Причал №27 КРАН МОСТОВОЙ 30/5 Блок-цех, участок ДВС КРАН МОСТОВОЙ 20 Блок-цех, участок наплавочный КРАН МОСТОВОЙ 15/3 Блок-цех, участок по ремонту ВРК КРАН МОСТОВОЙ 5 Блок-цех, участок по ремонту ВРК КРАН МОСТОВОЙ 5 Блок-цех, участок станочный КРАН МОСТОВОЙ 15/3 Блок-цех, участок по ремонту крышек цилиндров ДВС КРАН МОСТОВОЙ 15/3 Блок-цех, участок корпусно-докового производства КРАН МОСТОВОЙ 5 Блок-цех, участок котельно-трубопроводного производства КРАН МОСТОВОЙ 15/3 Блок-цех, участок ДВС КРАН МОСТОВОЙ 10 Блок-цех КРАН МОСТОВОЙ 10 Блок-цех КРАН-БАЛКА
3-3,2 (5 ед.) Блок-цех, участки по ремонту насосов, РТИ, котельно-трубопроводный КРАН УКОСИНА
0,5-1 (5 ед.) Блок-цех, участки по ремонту ДВС и ВРК Оборудование для обмыва
и покраски корпусов судовПолный комплект оборудования для обмыва корпусов судов в доках пресной водой под давлением.
Полный комплект оборудования фирмы KIESS для шлакоструйной очистки корпусов судов, позволяющий получать чистоту вплоть до SA-2.5:Тип оборудования для зачистки корпуса Марка Основные ТТД Машина для обмыва корпуса судна пресной водой высокого давления "Сугино" (JCM-500, Jet cleaner) используемая жидкость: персная вода, рабочее давление - 500 кг/см2, расход воды - 50л/мин. Абразивоструйный аппарат (4 комплекта) оборудование фирмы KIESS Тип подачи абразива - напорный. Расход абразива- 600 кг/час. Абразив: купершлак, никельшлак. Давление сжатого воздуха - 7 кг/см2. Расход воздуха - 10 м3/мипн. Диаметр сопла - 9мм. Степень очистки - до SA 2,5-3,0 Окрасочное оборудование высокого давления для покраски корпусов судов - 10 единиц.
Тип оборудования
Марка
Основные ТТД
Окрасочный аппарат (2 комплекта)
НК 63:1, произв-во: Ю.Корея, A-Tech HANDOK Безвоздушный распыл, давление краски на выходе 410 кг/см2; максимальная подача краски - 11,8 л/мин. Давление управляющего воздуха 3-6,5 кг/см2
Окрасочный аппарат (2 комплекта)
НК 63:1, произв-во: Ю.Корея, A-Tech HANDOK Тип подачи абразива - напорный. Расход абразива- 600 кг/час. Абразив: купершлак, никельшлак. Давление сжатого воздуха - 7 кг/см2. Расход воздуха - 10 м3/мипн. Диаметр сопла - 9мм. Степень очистки - до SA 2,5-3,0 Для обеспечения бесперебойного электропитания используется дизель-генератор мощностью 80 кВт.
Компрессоры для обеспечения пескоструйных работ:
Компрессор Технические параметры Количество Компрессор винтовой 14 ВКЭ производительность 10 м3/мин., давление 0,68 Мпа
3 Авто
и спецтехникаПредприятие располагает комплектом гидравлических лифтов фирмы AICHI для работы в доках высотой до 17 м, а также автопогрузчиками:
Тип Высота подъема платформы, м Грузоподъёмность, т Автопогрузчик ГАЗ-53 - 5 Автопогрузчик TOYOTA - 4 Машина подъемная AICHI SP 12 L 11,5 - Машина подъемная AICHI SP 18 L 17 - Машина подъемная AICHI SP 18 L 17







































